Vastgoedbeheer
Ertskade 154
Ertskade 154
Kenmerken
-
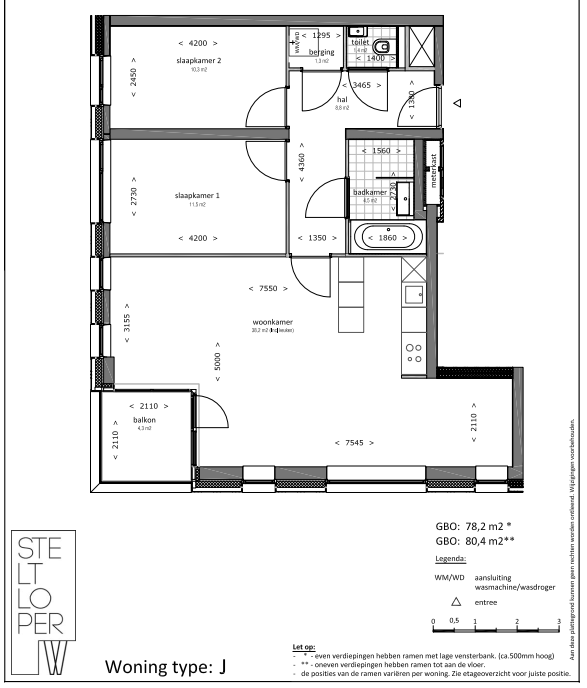
78m2
-
2
-
1
-
01-05-2021
Omschrijving
LET OP: WONING BESCHIKBAAR VOOR MAXIMAAL 2 WONINGDELERS
Gelegen in Amsterdam in het project de Steltloper is dit prachtige nieuwbouw appartement/penthouse aan de Ertskade te huur.
Fantastisch nieuwbouw appartement van circa 78m2 opgeleverd december 2018 met een energielabel A. Gelegen op het meest rustige stuk van de Ertskade in de wijk Sporenburg. Het appartement is afgewerkt met een luxe keuken, badkamer, toilet, gestuukte wanden en plafond en een nieuwe laminaat vloer.
Dit zeer fijne appartement heeft vrij uitzicht over het water van de Ertshaven en heeft een heerlijk terras.
Het 2-kamer appartement is gelegen op 10e verdieping. Via de aantrekkelijke entree bereik je de woning.
Indeling:
- Complex is uitgerust met twee liften
- Video-intercomsysteem
- Inpandige berging
- Aansluiting voor tv, internet en telefoon
- De keuken is voorzien van een koel/vries combinatie, vaatwasser, combi/magnetron en een keramische kookplaat.
- De badkamer heeft een bad, douche en wastafel
- Balkon
- Een separaat toilet
- Appartement wordt opgeleverd in neutrale kleur
- Voorzien van laminaat vloer
Omgeving:
Het appartement ligt helemaal achteraan op het rustige gedeelte van de Ertskade, waar men absolute rust ervaart op het gebied van geluid als verkeer. Er zijn diverse voorzieningen op loopafstand te vinden zoals een basisschool, kinderopvang, diverse sportfaciliteiten en winkelcentrum Brazilië, waar je 1,5 uur gratis kunt parkeren met de auto. En fijne restaurants zoals Lloyd, Club Panama of aan de overkant van de haven en alle bijzondere plekken op het KNSM eiland.
De buurt Sporenburg zelf kenmerkt zich door de reuring van een grote stad te midden van een overzichtelijke en kindvriendelijke woonbuurt. Er wonen relatief veel gezinnen, maar is het een betrekkelijk rustige buurt gekeken naar de bevolkingsdichtheid.
Ook uitvalswegen en openbaar vervoervoorzieningen liggen op loopafstand van het appartement. Daarnaast is de dichtstbijzijnde uitvalsweg slechts 2 minuten rijden. Met de fiets of tram ben je binnen 10 minuten in het centrum van Amsterdam. Het is zeer goed bereikbaar en met de auto binnen een paar minuten ben je via de Piet Heintunnel op de A10.
Huurdetails:
- Minimale huurperiode 1 jaar
- Beschikbaar per , zie kenmerken in advertentie
- De servicekosten bedragen € 75,- per maand
- Eventueel tegen meerprijs inpandige parkeerplaats beschikbaar
- Woning beschikt over eigen berging
- De waarborgsom bedraagt 2 maanden kale huur + service kosten
- Kosten voor de nutsbedrijven komen op naam van der huurder, de hoogte van de kosten zijn afhankelijk van uw eigen gebruik.
- Mogelijkheid tot het huren van een inpandige parkeerplek € 130,- per maand + € 10,- servicekosten
Om in aanmerking te kunnen komen voor het huren van een appartement dient u te voldoen aan financiële eisen;
• Inkomenseis van minimaal 3 keer de maandhuur als bruto maand inkomen (dit mag het gezamenlijke inkomen zijn)
• Voor ingang van de huurovereenkomst dient de eerste betaling voldaan te zijn (eerste maand huur en waarborgsom)
Bij interesse ontvangen wij graag zo spoedig mogelijk na de bezichtiging de volgende documenten:
§ Kopie ID huurder(s) (BSN en foto doorhalen)
§ Werkgeversverklaring (deze kunt u opvragen bij u werkgever)
§ Drie recente loonstroken
§ Kopie bankafschrift waarop het salaris zichtbaar is
§ Verhuurdersverklaring
§ Uitdraai GBA/BRP
§ Kopie bankpas
§ Uw huidige adres en contact gegevens.
Bij een eigen onderneming ontvangen wij graag aanvullend:
§ Uittreksel van KvK
§ Inkomen aantonen met de inkomensverklaring van de belastingdienst of je IB aangifte
§ Recente Jaarcijfers, Balans, winst- en verliesrekening van de 2 afgelopen volledige boekjaren
§ Accountantsverklaring (of inkomensverklaring van de belastingdienst)
§ Kopie bankafschrift waarop het inkomen gestort wordt.
§ Uw huidige adres en contact gegevens
Wilt u bezichtigen?
Bel met onze verhuur afdeling voor een afspraak op 020 305 44 78 of stuur een mail naar verhuur@hoen.nl
‘’Deze informatie is door ons met de nodige zorgvuldigheid samengesteld. Onzerzijds wordt echter geen enkele aansprakelijkheid aanvaard voor enige onvolledigheid, onjuistheid of anderszins, dan wel de gevolgen daarvan. Alle opgegeven maten en oppervlakten zijn indicatief.”
Foto's
€
1.585
,-
per maand
-
1019 BB
-
AMSTERDAM