Vastgoedbeheer
Pieter Aertszstraat 97 2
Pieter Aertszstraat 97 2
Kenmerken
-
55m2
-
2
-
1
-
per direct
Omschrijving
Bijzonder sfeervolle ongemeubileerde 2,5-kamerwoning met balkon gelegen op de tweede verdieping in een goed onderhouden pand in de zeer gewilde Amsterdamse Pijp.
De Pieter Aertszstraat is een rustige straat met eenrichtingsverkeer en grenst direct aan de Van Woustraat.
De buurt kenmerkt zich door een levendige omgeving met op loopafstand diverse leuke (eet)cafés, restaurants, buurtwinkels en natuurlijk de bekende Albert Cuypmarkt. Alle voorzieningen zijn op loopafstand gelegen. De Albert Heijn (met ruime openingstijden) ligt op de hoek. Voor alle verse en biologische producten kunt u tegenwoordig ook te voet terecht bij de Marqt en de Landmarkt.
Voor recreatie kunt u terecht in het nabijgelegen Sarphati- en Martin Luther Kingpark, maar uiteraard kunt u ook genieten van uw eigen balkon.
Op enkele autominuten zijn diverse uitvalswegen (o.a. Ringweg A-10, A-2 en A-1) gelegen. Daarbij biedt de directe omgeving in alle gewenste richtingen mogelijkheden met het openbaar vervoer.
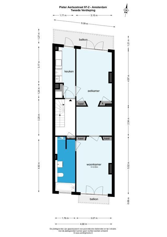
INDELING:
- Middels het gemeenschappelijke trappenhuis bereikt u de tweede verdieping.
- Entree, hal met toegang naar de keuken, separaat toilet en de woonkamer met balkon aan de achterzijde. De keuken is voorzien van alle inbouwapparatuur
- De tussenkamer is te gebruiken als eetkamer of kantoor.
- Aan de voorzijde van de woning bevindt zich de riante slaapkamer. De badkamer grenst direct aan deze slaapkamer. Badkamer is voorzien van douche, toilet, wastafel en bad.
- ongemeubileerd
- per direct beschikbaar
- Minimale huurperiode 1 jaar
- Jaarlijkse indexering middels CPI
- De waarborgsom bedraagt minimaal 2 maanden huur
- Kosten voor de nutsbedrijven komen op naam van de huurder, de hoogte van de kosten zijn afhankelijk van uw eigen gebruik.
Om in aanmerking te kunnen komen voor het huren van een appartement dient u te voldoen aan financiële eisen;
- Inkomenseis van minimaal 3 keer de maandhuur als bruto inkomen.
- Voor ingang van de huurovereenkomst dient de eerste betaling voldaan te zijn (eerste maand huur en waarborgsom).
Bij interesse ontvangen wij graag zo spoedig mogelijk na de bezichtiging de volgende gegevens;
- Kopie ID huurders (let op juiste aanlevering persoonsgegevens, foto en BSN onherkenbaar maken)
- Werkgeversverklaring
- Drie recente loonstroken
- Kopie bankafschrift waarop uw naam en het salaris zichtbaar is
- Verhuurdersverklaring
- Huidige adres en contact gegevens huurders
Een eigen onderneming? Dan ontvangen wij graag aanvullend:
- Uittreksel van KvK (niet ouder dan 4 weken)
- Inkomen aantoonbaar met de IB aangifte
- Accountantsverklaring (of IB aangifte)
- Recente Jaarcijfers, Balans, winst- en verliesrekening van de 2 afgelopen volledige boekjaren
Wilt u bezichtigen?
Reageer op deze advertentie met een korte introductie.
Deze informatie is door ons met de nodige zorgvuldigheid samengesteld. Onzerzijds wordt echter geen enkele aansprakelijkheid aanvaard voor enige onvolledigheid, onjuistheid of anderszins, dan wel de gevolgen daarvan. Alle opgegeven maten en oppervlakten zijn indicatief
Foto's
€
2.300
,-
per maand
-
1073 SL
-
AMSTERDAM