Vastgoedbeheer
Van Speijklaan 14
Van Speijklaan 14
Kenmerken
-
125m2
-
5
-
4
-
achtertuin
-
in overleg
Omschrijving
Ruime eengezinswoning aan de rand van Hilversum met tuin, garage en ruime zolder.
Let op: foto's zijn van een vergelijkbare woning.
Indeling:
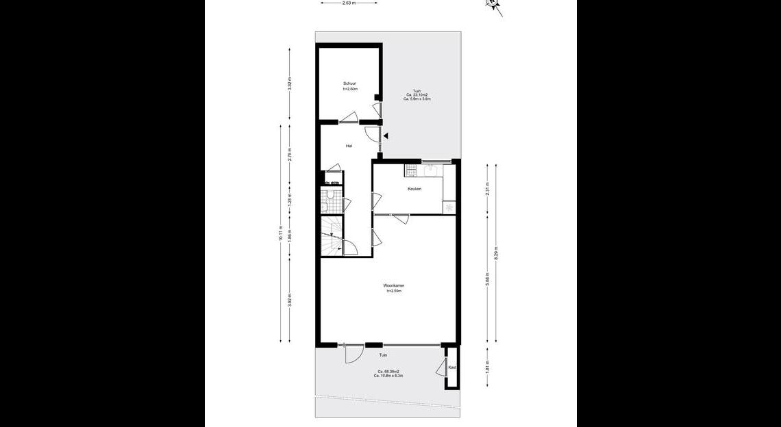
Begane grond: entree, hal, toilet, ruime woonkamer, open keuken, voor en achtertuin met garage.
Eerste verdieping: 3 slaapkamers, nieuwe badkamer met ligbad en losse douche, separaat toilet.
Tweede verdieping / zolder: 1 slaapkamer, cv ruimte / opslagruimte.
- Badkamer en keuken zijn recentelijk gerenoveerd.
- Geen inbouw aanwezig in de keuken behalve een afzuigkap.
- De bijgevoegde foto's zijn dan ook van een soortgelijke woning.
- Beschikbaar per direct voor een minimale periode van 12 maanden.
- De maandelijkse servicekosten bedragen €1,20 voor de glasverzekering.
- De woning heeft eigen meters voor gas, water en elektra (komen op naam van huurder).
Bij interesse ontvangen wij graag zo spoedig mogelijk na de bezichtiging de volgende gegevens;
- Kopie ID huurders (let op juiste aanlevering persoonsgegevens)
- Werkgeversverklaring
- Drie recente loonstroken
- Kopie bankafschrift waarop uw naam en het salaris zichtbaar is en waarvan de automatische incasso mag plaats vinden.
- Kopie bankpas van welke rekening de huur geïncasseerd kan worden
- Verhuurdersverklaring
- Huidige adres en contact gegevens huurders
Een eigen onderneming? Dan ontvangen wij graag aanvullend:
- Uittreksel van KvK (niet ouder dan 4 weken)
- Inkomen aantoonbaar met de IB aangifte
- Accountantsverklaring (of IB aangifte)
- Recente Jaarcijfers, Balans, winst- en verliesrekening van de 2 afgelopen volledige boekjaren
Wilt u bezichtigen?
Graag dan uw contactgegevens achterlaten via deze advertentie.
Foto's
€
2.100
,-
per maand
-
1215 SB
-
HILVERSUM