Vastgoedbeheer
Van Woustraat 144 1
Van Woustraat 144 1
Kenmerken
-
68m2
-
3
-
2
-
balkon
-
per direct
Omschrijving
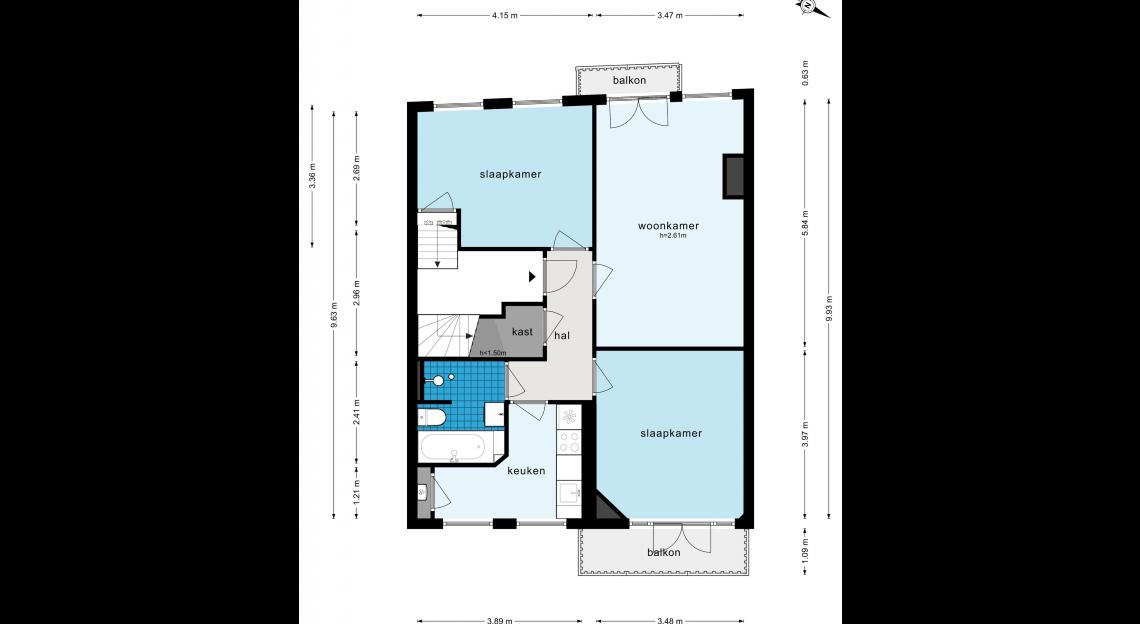
In het bruisende stadsdeel De Pijp gelegen compleet luxe gerenoveerd driekamerappartement. Op loopafstand van de beroemde Albert Cuypmarkt, diverse horeca, een keur aan winkels en supermarkt.
Via het gemeenschappelijk trappenhuis bereikt u de woning. De woning is geheel voorzien van nieuw massief parket en dubbelglas. Door de openslaande deuren komt u in de ruime woonkamer met open keuken.
De keuken is van alle gemakken voorzien; 4 pits gasfornuis, combi-oven, vaatwasser, afzuigkap, koelkast en aparte vriezer.
Zowel aan de voor- als achterzijde bevindt zich een balkon.
De aan de voorzijde gelegen slaapkamer is circa 12 m2 groot en de aan de achterzijde gelegen slaapkamer circa 8m2, hier is eventueel wel ruimte om een tweepersoonsbed te plaatsen.
In badkamer treft u een dubbele wastafel, douche, wc en ligbad.
- De woning word is per direct beschikbaar
- Delen is niet toegestaan.
- Minimale huurperiode 12 maanden.
- Indexering na 12 maanden volgens CPI
- Borgstelling, minimaal 2 maanden
Bij interesse ontvangen wij graag zo spoedig mogelijk na de bezichtiging de volgende gegevens;
- Kopie ID huurders (let op juiste aanlevering persoonsgegevens, foto en BSN onherkenbaar maken)
- Werkgeversverklaring
- Drie recente loonstroken
- Kopie bankafschrift waarop uw naam en het salaris zichtbaar is
- Verhuurdersverklaring
- Huidige adres en contact gegevens huurders
Een eigen onderneming? Dan ontvangen wij graag aanvullend:
- Uittreksel van KvK (niet ouder dan 4 weken)
- Inkomen aantoonbaar met de IB aangifte
- Accountantsverklaring (of IB aangifte)
- Recente Jaarcijfers, Balans, winst- en verliesrekening van de 2 afgelopen volledige boekjaren
Wilt u bezichtigen?
Reageer op deze advertentie met een korte introductie of stuur een mail naar verhuur@hoen.nl
Deze informatie is door ons met de nodige zorgvuldigheid samengesteld. Onzerzijds wordt echter geen enkele aansprakelijkheid aanvaard voor enige onvolledigheid, onjuistheid of anderszins, dan wel de gevolgen daarvan. Alle opgegeven maten en oppervlakten zijn indicatief.
Foto's
€
2.600
,-
per maand
-
1073 LV
-
AMSTERDAM