Vastgoedbeheer
Tiengemeten 37
Tiengemeten 37
Kenmerken
-
47m2
-
2
-
1
-
per direct
Omschrijving
Centraal gelegen aan de rand van Amstelveen, aan de Tiengemeten, dit prachtig onlangs geheel gerenoveerde appartement te huur.
Fantastisch gerenoveerd appartement, van 47 m2.
De woning is afgewerkt met een luxe keuken, badkamer, toilet, gestuukte wanden en plafond en een PVC vloer.
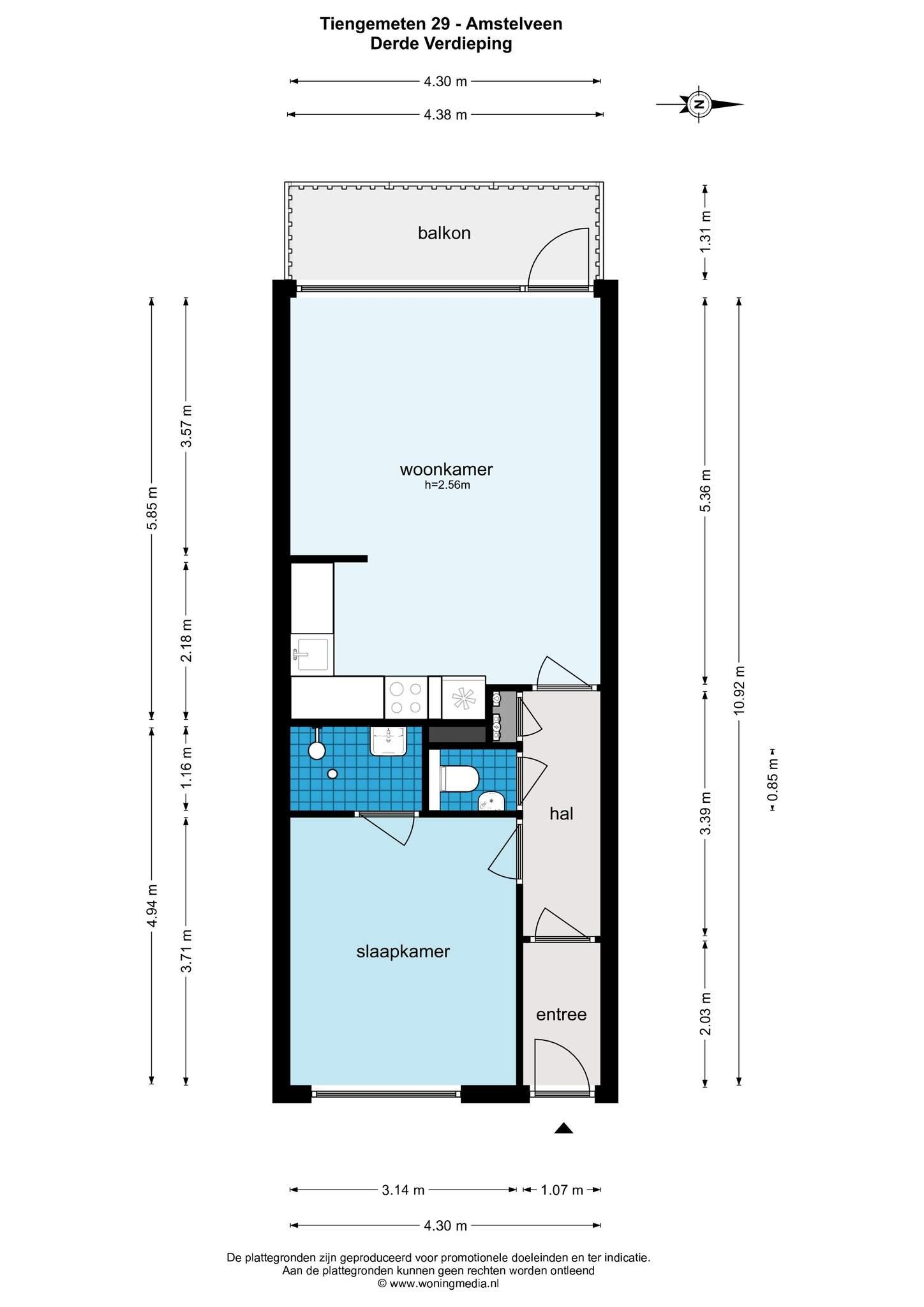
Het 2-kamer appartement is gelegen op 3e verdieping. Via de nette gezamenlijk entree bereik je de woning.
Indeling:
- Complex heeft een lift
- Intercomsysteem
- Aansluiting voor tv, internet en telefoon
- De keuken is voorzien van een koel/vries combinatie, vaatwasser, combi/magnetron en een keramische kookplaat.
- De badkamer heeft een douche en wastafel
- Een separaat toilet
- Appartement wordt opgeleverd in neutrale kleur
De winkels voor al uw dagelijkse boodschappen, supermarkten en speciaalzaken zijn op loopafstand, aan de Rembrandtweg , de Bourgondische laan of aan de overkant van de Beneluxbaan het winkelcentrum Kostverlorenhof. Maar ook meerdere scholen, sportverenigingen, het VU medisch centrum en de Zuid-As zijn dichtbij.
Openbaar vervoer is vijf minuten lopen naar de halte van tram 5 en 25 welke u in 15 minuten naar Station Zuid brengt. Met de auto rijdt u binnen enkele minuten de A10 en de A9 op.
Huurdetails:
- Minimale huurperiode 1 jaar
- Beschikbaar per , zie kenmerken in advertentie
- De servicekosten bedragen € 40,- per maand
- Voorschot stookkosten € 65,- per maand
- De waarborgsom bedraagt 2 maanden kale huur + service kosten
- Kosten voor de nutsbedrijven komen op naam van der huurder, de hoogte van de kosten zijn afhankelijk van uw eigen gebruik.
-
Om in aanmerking te kunnen komen voor het huren van een appartement dient u te voldoen aan financiële eisen;
• Inkomenseis van minimaal 3 keer de maandhuur als bruto maand inkomen (dit mag het gezamenlijke inkomen zijn)
• Voor ingang van de huurovereenkomst dient de eerste betaling voldaan te zijn (eerste maand huur en waarborgsom)
Bij interesse ontvangen wij graag zo spoedig mogelijk na de bezichtiging de volgende documenten:
§ Kopie ID huurder(s) (BSN en foto doorhalen)
§ Werkgeversverklaring (deze kunt u opvragen bij u werkgever)
§ Drie recente loonstroken
§ Kopie bankafschrift waarop het salaris zichtbaar is
§ Verhuurdersverklaring
§ Uitdraai GBA/BRP
§ Kopie bankpas
§ Uw huidige adres en contact gegevens.
Bij een eigen onderneming ontvangen wij graag aanvullend:
§ Uittreksel van KvK
§ Inkomen aantonen met de inkomensverklaring van de belastingdienst of je IB aangifte
§ Recente Jaarcijfers, Balans, winst- en verliesrekening van de 2 afgelopen volledige boekjaren
§ Accountantsverklaring (of inkomensverklaring van de belastingdienst)
§ Kopie bankafschrift waarop het inkomen gestort wordt.
§ Uw huidige adres en contact gegevens
Wilt u bezichtigen?
Bel met onze verhuur afdeling voor een afspraak op 020 305 44 78 of stuur een mail naar verhuur@hoen.nl
‘’Deze informatie is door ons met de nodige zorgvuldigheid samengesteld. Onzerzijds wordt echter geen enkele aansprakelijkheid aanvaard voor enige onvolledigheid, onjuistheid of anderszins, dan wel de gevolgen daarvan. Alle opgegeven maten en oppervlakten zijn indicatief.”
Foto's
€
1.515
,-
per maand
-
1181 CN
-
AMSTELVEEN